Our company’s dry type transformer is made of epoxy resin and adopts foreign advanced technology and CAD design. The core is manufactured with high quality cold rolled grain-oriented silicon steel and steps overlapping structure is also adopted for the core design, thus to greatly reduce no-load loss. Winding is manufactured with high quality epoxy resin, coil casting process is completed by automatic vacuum casting equipments. The epoxy resin is with characteristics of good penetrability and no bubbles, so its partial discharging volume is small. Dry-type transformers with advantages of strong overload ability, good thermal stability, small size, light weight, easy to install, exemption from maintenance can be widely used in high-rise buildings, commercial centers, airports, railway stations, docks, subways, factories and underground distribution stations.
Products structure
Core: The core is manufactured with high quality cold rolled grain-oriented silicon steel and step overlapping structure is also adopted for the core design. Magnetic circuit structure is improved and the magnetic flux density of steps overlapping joints is lowered. Because of first-class equipments, high quality silicon steel and advanced technology , the no-load capacity is greatly improved. Compared with normal cores, no-load loss, no-load current and noise are respectively reduced by 5-6%, 20-30%, 6%.
Coil: HV winding is casted with high quality epoxy resin at vacuum state with pressure; LV winding is manufactured with high quality foil conductor. Advanced technology guarantee the small partial discharging volume, high capacity of short circuit impendence. The regulation range of H.V winding is Un±5% and Un±2x2.5%, on-load regulation range is wider.
Temperature controlling device: Function with fault alarm, over-temperature alarm, over-temperature trip, three-phase inspection, start and stop air cooling devices, etc.
Cooling devices: Using axial fan with low noise, uniform wind and easy to install, etc. Installation of cooling fan can overload about 40% in the long term.
Technical features
1, Noise of transformers come from cores. Our factory makes use of advanced Step-Lap technology to improve magnetic distribution in core. With its special advantages, lower transformers’noise.
2, Design of products adopts CAD. Choose high quality silicon steel and low flux density which can leave far away from the saturation point, so amount of harmonics will be decreased, then noise will be lowered.
3, All clamping parts are made of silicone rubber and elastic element to butter, so can reduce the amplitude, noise, while the outer of core is coated with a certain thickness of the resin, it plays a sound effect.
4, Small partial discharging volume and high electric strength. Solid insulation combined with high quality epoxy and glass fiber has very high electric strength(breakdown strength is not less than 34kV/mm). Partial discharging volume is small , can be controlled within 10pc.
5, Flame retardant and no pollution to the environment. The heat produced when resin epoxy and glass fiber composite insulation materials burn is very small (about 6.5mJ/KG), so it is hard to flame and can extinguish automatically.
6,Damp proof, can safely work under conditions of 100% damp. Dry type transformer’s core is coated with epoxy and its winding is completely casted by epoxy resin, so it can work under 100% damp and has strong corrosion protection capacity.
Technical Parameter
Model marks

Specification
Voltage level: 6-35kV
Capacity: 30-20000kVA
Regulation mode and tapping range: Un±2x2.5% (or±5%) no excitation, Un±4x2.5% (or ±5%) on -load voltage regulation
Frequency: 50Hz
Phase: three-phase
Vector group: Yyno; Dyn11; YNd11 (or according to customers’requirements)
Short-circuit impedance: standard impedance(see specification table)
Working environment: altitude less than 1000 meters; environment temperature lower than 40°C.(If the working surrounding exceeds these limits, special design and manufacturing process should be involved according to related standards)
Insulation and heat resisting level: F, the upper limit of temperature is 155 °C ,and the limit of temperature rise of the winding is 100K.
Cooling mode : natural air cooling (AN), forced air cooling (AF)
Insulation level:
A, 6kV-type transformer: main frequency withstand voltage is 25kV, impulse withstand voltage id 60kV
B, 10kV-type transformer: main frequency withstand voltage is 35kV, impulse withstand voltage id 75kV
C, 20kV-type transformer: main frequency withstand voltage is 50kV, impulse withstand voltage id 125kV
D, 35kV-type transformer: main frequency withstand voltage is 70kV, impulse withstand voltage id 170kV
Sheet 1, Basic performance parameter of SC(B) 10 10kV 30-2500kVA resin insulation dry type transformer
| Rated voltage of H.V:10(11,10.5,6.6,6.3,3.15)kV;Rated voltage of L.V:0.4kV, vector group:Dyn11 or Yyn0;three-phase | ||||||||||||||||
| Model | Po(W) | PK (75°C) (W) | Uk(%) | Io(%) | Lp dB(AN) | GT(kg) | Outline figure | Dimensions(mm) L*W*H/h | Size of basement L1/L2*f-n*Φ18 | H.V outlet M1/M2-Md | L.V outlet K1*K2/K3-δ=(Figure 1) | |||||
| SC10-30/10 | 190 | 620 | 4 | 2.4 | 42 | 370 | Figure 2 | 890*1000*860 | 400/410*000-4*Φ18 | 250/260-M10 | 85*225/220-δ[Fig.a] | |||||
| SC10-50/10 | 270 | 860 | 2.0 | 42 | 520 | 1030*1000*920 | 550/410*000-4*Φ18 | 250/260-M10 | 90*270/220-δ[Fig.a] | |||||||
| SC10-80/10 | 370 | 1200 | 1.6 | 42 | 660 | 1050*1100*930 | 550/410*000-4*Φ18 | 250/302-M10 | 90*270/235-δ[Fig.a] | |||||||
| SC10-100/10 | 400 | 1370 | 1.6 | 42 | 720 | 1060*1100*950 | 550/410*000-4*Φ18 | 250/305-M10 | 95*285/238-δ[Fig.a] | |||||||
| SC10-125/10 | 470 | 1610 | 1.2 | 42 | 810 | 1080*1100*990 | 550/410*000-4*Φ18 | 250/309-M10 | 95*285/240-δ[Fig.a] | |||||||
| SC10-160/10 | 545 | 1850 | 1.2 | 42 | 1010 | 1100*1100*1050 | 660/430*000-4*Φ18 | 260/312-M10 | 95*290/256-δ[Fig.b] | |||||||
| SC10-200/10 | 620 | 2200 | 1.2 | 44 | 1140 | 1150*1100*1085 | 660/430*000-4*Φ18 | 260/318-M10 | 100*300/263-δ[Fig.b] | |||||||
| SC10-250/10 | 720 | 2400 | 1.2 | 44 | 1270 | 1210*1100*1100 | 660/430*000-4*Φ18 | 260/322-M10 | 100*300/268-δ[Fig.b] | |||||||
| SC10-315/10 | 880 | 3030 | 1.0 | 45 | 1480 | 1340*1200*1170 | 660/460*000-4*Φ18 | 260/326-M10 | 105*315/272-δ[Fig.c] | |||||||
| SCB10-400/10 | 980 | 3480 | 1.0 | 45 | 1825 | 1400*1200*1245 | 660/460*000-4*Φ18 | 280/336-M10 | 110*330/282-δ[Fig.d] | |||||||
| SCB10-500/10 | 1160 | 4260 | 1.0 | 45 | 1860 | Figure 3 | 1400*1200*1280 | 660/460*000-4*Φ18 | 350/338-M10 | 225*450/224-δ[Fig.d] | ||||||
| SCB10-630/10 | 1340 | 5130 | 0.8 | 46 | 2120 | 1430*1200*1390 | 820/460*190-8*Φ18 | 350/341-M10 | 230*460/229-δ[Fig.d] | |||||||
| SCB10-630/10 | 1300 | 5205 | 6 | 0.8 | 46 | 2100 | 1570*1200*1240 | 820/460*190-8*Φ18 | 350/341-M10 | 252.5*505/229-δ[Fig.d] | ||||||
| SCB10-800/10 | 1520 | 6075 | 0.8 | 47 | 2530 | 1620*1300*1405 | 820/510*190-8*Φ18 | 350/345-M10 | 260*502/233-δ[Fig.e] | |||||||
| SCB10-1000/10 | 1770 | 7100 | 0.6 | 49 | 2965 | 1700*1300*1520 | 820/510*190-8*Φ18 | 400/356-M10 | 275*550/246-δ[Fig.e] | |||||||
| SCB10-1250/10 | 2090 | 8465 | 0.6 | 50 | 3500 | 1740*1400*1665 | 820/560*190-8*Φ18 | 400/359-M10 | 282.5*565/249-δ[Fig.f] | |||||||
| SCB10-1600/10 | 2450 | 10245 | 0.6 | 50 | 4200 | 1850*1400*1735 | 820/560*190-8*Φ18 | 400/371-M10 | 300*600/263-δ[Fig.f] | |||||||
| SCB10-2000/10 | 3050 | 12620 | 0.4 | 52 | 4960 | 1910*1450*1945 | 820/560*220-8*Φ18 | 400/382-M16 | 310*620/274-δ[Fig.g] | |||||||
| SCB10-2500/10 | 3600 | 14985 | 0.4 | 52 | 6045 | 2000*1450*2060 | 820/560*220-8*Φ18 | 400/389-M16 | 325*650/284-δ[Fig.h] | |||||||
Sheet 2, Basic performance parameter of SC(B) 10 20kV 315-2500kVA resin insulation dry type transformer
| Model | Impedance UK (%) | No-load Po(W) | With load Pk(W) | Io % | Noise (An)Db | Dimensions(mm) | Weight(kg) | L.V. terminal | |||||||||
| L*B*H | m | n | I1 | I2 | K1 | K2 | |||||||||||
| SCB10-315/20 | 6 | 1250 | 3020 | 0.9 | 48 | 1470*1020*1405 | 820 | 820 | 510 | 145 | 387 | 304 | 2200 | a | |||
| SCB10-400/20 | 1300 | 3500 | 0.8 | 48 | 1550*1070*1470 | 820 | 820 | 535 | 145 | 407 | 324 | 2250 | a | ||||
| SCB10-500/20 | 1600 | 3700 | 0.8 | 50 | 1550*1070*1550 | 820 | 820 | 535 | 145 | 416 | 338 | 2520 | a | ||||
| SCB10-630/20 | 1700 | 5000 | 0.7 | 50 | 1565*1070*1542 | 820 | 820 | 540 | 165 | 413.5 | 326.5 | 2340 | b | ||||
| SCB10-800/20 | 1800 | 6100 | 0.6 | 50 | 1645*1070*1657 | 820 | 820 | 565 | 178 | 420 | 339 | 3225 | b | ||||
| SCB10-1000/20 | 2100 | 7400 | 0.5 | 50 | 1760*1070*1725 | 820 | 820 | 600 | 200 | 430.5 | 347 | 3650 | c | ||||
| SCB10-1250/20 | 2700 | 9500 | 0.5 | 52 | 1790*1270*1807 | 1070 | 1070 | 615 | 190 | 439 | 351 | 3950 | c | ||||
| SCB10-1600/20 | 2900 | 11070 | 0.4 | 52 | 1900*1270*1940 | 1070 | 1070 | 650 | 205 | 451.5 | 365 | 4700 | d | ||||
| SCB10-2000/20 | 3500 | 13520 | 0.4 | 54 | 1980*1270*2042 | 1070 | 1070 | 680 | 205 | 479.5 | 391 | 5650 | d | ||||
| SCB10-2500/20 | 4100 | 14990 | 0.3 | 54 | 2055*1270*2250 | 1070 | 1070 | 710 | 215 | 485.5 | 396.5 | 6650 | d | ||||
Note: the outline dimensions are just for reference, the final dimensions are subject to the actual outline of products.
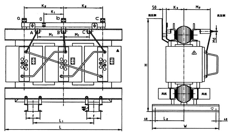
Fig.1(L.V outlet terminal)

Fig.2 (outline dimensions of main body)

Fig.3 (outline dimensions of main body)

Note: the size of forced air system (fan) cannot exceed the size of main body(L*W)
Sheet 3, Protective casing and outlet mode of SC(B) 10 series 10kV 30-2500kVA resin insulation dry type transformer
| Model | UK (%) | GT (kg) | Outline figure | Dimensions size(mm) | Size of basement(mm) | Remark | |||||||||||
| L*W*H/h (normal products) | L*W*H/h (Assorted switch cabinet products) | L1/L2*f-n*Φ18 | |||||||||||||||
| SC10-30/10 | 4 | 370 | Figure 5 | 1350*1000*1200/860 | 1350*1000*H(2200)/860 | 400/410*000-4*Φ18 | Remark: (1), the dimensions of high voltage and low voltage outlet terminals are detailed in table1, Fig.1,Fig2 and Fig.3 (2),the outline dimensions are only for reference. (3),the dry type transformer, which matches the low voltage switch cabinet, has a standard casing height H=2200mm; in addition, we can produce transformers with dimensions which are required by customers. (4), the casing's material is used of aluminum alloy, also can manufacture and design according customers' requested material and protective level. | ||||||||||
| SC10-50/10 | 520 | 1350*1000*1200/920 | 1350*1000*H(2200)/920 | 550/410*000-4*Φ18 | |||||||||||||
| SC10-80/10 | 660 | 1400*1100*1300/930 | 1400*1100*H(2200)/930 | 550/410*000-4*Φ18 | |||||||||||||
| SC10-100/10 | 720 | 1400*1100*1300/950 | 1400*1100*H(2200)/950 | 550/410*000-4*Φ18 | |||||||||||||
| SC10-125/10 | 810 | 1400*1100*1300/990 | 1400*1100*H(2200)/990 | 550/410*000-4*Φ18 | |||||||||||||
| SC10-160/10 | 1010 | 1600*1100*1400/1050 | 1600*1100*H(2200)/1050 | 660/430*000-4*Φ18 | |||||||||||||
| SC10-200/10 | 1140 | 1600*1100*1400/1085 | 1600*1100*H(2200)/1085 | 660/430*000-4*Φ18 | |||||||||||||
| SC10-250/10 | 1270 | 1600*1100*1400/1100 | 1600*1100*H(2200)/1100 | 660/430*000-4*Φ18 | |||||||||||||
| SC10-315/10 | 1630 | 1700*1200*1500/1170 | 1700*1200*H(2200)/1170 | 660/460*000-4*Φ18 | |||||||||||||
| SCB10-400/10 | 1975 | 1700*1200*1500/1245 | 1700*1200*H(2200)/1245 | 660/460*000-4*Φ18 | |||||||||||||
| SCB10-500/10 | 2000 | Figure 6 | 1700*1200*1500/1280 | 1700*1200*H(2200)/1280 | 660/460*000-4*Φ18 | ||||||||||||
| SCB10-630/10 | 2280 | 1900*1200*1600/1390 | 1900*1200*H(2200)/1390 | 820/460*190-8*Φ18 | |||||||||||||
| SCB10-630/10 | 6 | 2260 | 1900*1200*1600/1240 | 1900*1200*H(2200)/1240 | 820/460*190-8*Φ18 | ||||||||||||
| SCB10-800/10 | 2705 | 2000*1300*1750/1405 | 2000*1300*H(2200)/1405 | 820/510*190-8*Φ18 | |||||||||||||
| SCB10-1000/10 | 3140 | 2000*1300*1750/1520 | 2000*1300*H(2200)/1520 | 820/510*190-8*Φ18 | |||||||||||||
| SCB10-1250/10 | 3695 | 2100*1400*1900/1665 | 2100*1400*H(2200)/1665 | 820/560*190-8*Φ18 | |||||||||||||
| SCB10-1600/10 | 4400 | 2100*1400*1900/1735 | 2100*1400*H(2200)/1735 | 820/560*190-8*Φ18 | |||||||||||||
| SCB10-2000/10 | 5180 | 2300*1450*2200/1945 | 2300*1450*H(2200)/1945 | 820/560*220-8*Φ18 | |||||||||||||
| SCB10-2500/10 | 6270 | 2300*1450*2200/2060 | 2300*1450*H(2200)/2060 | 820/560*220-8*Φ18 | |||||||||||||
Note: the outline dimensions are just for reference, the final dimensions are subject to the actual outline of products.
Casing: the casing is a framework modular stainless, which further protects the transformer. The transformer products and the low voltage distribution panel can be installed in the same distribution room. High/low voltage bus-bar outlet interfaces are installed according to the customer’s requirements. The casing is compact, pretty in appearance and fine in rigidity.
Protection level of casing: the common protection level is IP20 and IP23 ,etc;IP20 can prevent a particle with diameter larger than 12mm from entering into the casing, thus guarantee the safety;IP23 can be chosen to prevent water drops which is within an angle of 60°from the vertical line entering into the casing.[Note: IP23 casing will cause the decrease of heat radiating ability of transformer. So the capacity will be reduced 5% for a low capacity transformer and 10% for a large capacity transformer.
Outlet mode:1) bracket for inlet (outlet) wires is equipped in the casing, see Fig.4;
2) when outlet wires are at the low voltage (copper bus-bar) upper (side, top) part; pre-holes are processed for outlet wires on the upper(side, top) part of casing, see Fig.5, Fig.6;The customer connects the bus-bar between transformer and switch cabinet according to the actual conditions; 3) if the transformer possesses a capacity =200kva, the lateral outlet(right or left)of low voltage copper bus-bar can be placed as shown in Fig.7;for SCB 10-2000-2500/10=120, for other types, m=100;4) outlet holes are punched on the casing as required by customers.
Fig.4 ( sketch drawing of inlet and outlet mode)

Fig.5 (outline dimensions of casing)

Fig.6 (outline dimensions of casing)

Sheet 4, Basic performance parameter of SC(B)10 series 10kV 30-2500kVA on-load regulating resin insulation dry type transformer
| Rated voltage of H.V:10(11,10.5,6.6,6.3,3.15)kV;Rated voltage of L.V:0.4kV, vector group:Dyn11 or Yyn0;50HZ three-phase;tapping range:±4x2.5%(9 steps) | ||||||||||||||||
| Model | Po(W) | PK (75°C) (W) | Uk(%) | Io(%) | LpdB(A) | GT(kg) | Outline figure | Dimensions(mm) L*W*H/h | Size of basement L1/L2*f-n*Φ18 | H.V outlet M1/M2-Md | L.V outlet K1*K2/K3-δ=3(Fig.) | |||||
| SCZ10-200/10 | 640 | 2250 | 4 | 1.2 | 44 | 1350 | Figure 8 | 1600*1400*1400/1085 | 660/450*000-4*Φ18 | 260/318-M10 | 100*300/263-δ=4[Fig.a] | |||||
| SCZ10-250/10 | 735 | 2450 | 1.2 | 44 | 1480 | 1600*1400*1400/1100 | 660/450*000-4*Φ18 | 260/322-M10 | 100*300/268-δ=5[Fig.b] | |||||||
| SCZ10-315/10 | 890 | 3090 | 1.0 | 45 | 1660 | 1700*1400*1500/1160 | 660/480*000-4*Φ18 | 260/326-M10 | 105*315/272-δ=6[Fig.c] | |||||||
| SCZ10-400/10 | 995 | 3545 | 1.0 | 45 | 2040 | 1700*1400*1500/1245 | 660/480*000-4*Φ18 | 280/336-M10 | 110*330/282-δ=6[Fig.d] | |||||||
| SCZB10-500/10 | 1160 | 4350 | 1.0 | 45 | 2230 | 1700*1400*1500/1210 | 660/480*000-4*Φ18 | 350/338-M10 | 225*450/224-δ=6[Fig.d] | |||||||
| SCZB10-630/10 | 1370 | 5230 | 0.8 | 46 | 2610 | Figure 9 | 1900*1500*1600/1350 | 820/510*190-4*Φ18 | 350/341-M10 | 230*460/229-δ=8[Fig.d] | ||||||
| SCZB10-630/10 | 1300 | 5310 | 6 | 0.8 | 46 | 2520 | 1900*1500*1600/1240 | 820/510*190-8*Φ18 | 350/341-M10 | 252.5*505/229-δ=8[Fig.d] | ||||||
| SCZB10-800/10 | 1550 | 6195 | 0.8 | 47 | 2950 | 2000*1500*1700/1320 | 820/510*190-8*Φ18 | 350/345-M10 | 260*520/233-δ=8[Fig.e] | |||||||
| SCZB10-1000/10 | 1805 | 7240 | 0.6 | 49 | 3520 | 2000*1500*1700/1450 | 820/510*190-8*Φ18 | 350/356-M10 | 275*550/246-δ=10[Fig.d] | |||||||
| SCZB10-1250/10 | 2130 | 8630 | 0.6 | 49 | 4000 | 2150*1600*1900/1600 | 820/560*190-8*Φ18 | 350/359-M10 | 282.5*565/249-δ=10[Fig.f] | |||||||
| SCZB10-1600/10 | 2500 | 10440 | 0.6 | 49 | 4690 | 2150*1600*1900/1735 | 820/560*190-8*Φ18 | 400/371-M10 | 300*600/263-δ=12[Fig.f] | |||||||
| SCZB10-2000/10 | 2960 | 12620 | 0.4 | 50 | 5570 | 2300*1600*2200/1900 | 820/560*220-8*Φ18 | 400/382-M16 | 310*620/274-δ=12[Fig.g] | |||||||
| SCZB10-2500/10 | 3500 | 14985 | 0.4 | 52 | 6630 | 2300*1600*2200/2030 | 820/560*220-8*Φ18 | 400/389-M16 | SC10-200/35 | |||||||
Note:
(1) the outline dimensions are just for reference, the final dimensions are subject to the actual outline of products.
(2) the dimensions of high/low voltage outlet terminals is the same as that of no-load regulating transformer with the same capacity, see Fig.1 for more details.
Fig.7(sketch drawing of low voltage bus-bar outlet)

To improve the quality of electricity supply, we can conduct on-load voltage regulation if the dry type transformer equips with an on-load tapping switch. The on-load tapping switch equips with an automatic controller, which facilitates the site control or remote control. In addition, computer interface is provided as required by customers.
● On-load regulating resin insulation dry type transformer usually adopts vacuum on-load tapping switch, which can be installed independently on the right(left) side of transformer or the front face of high voltage side.
● Complex on-load tapping switch (air type) is also available to meet the customers’ need. This kind of tapping switch is installed on the main body, so it has the advantages such as compact structure, less area occupation and easy installation.
● Other kinds of on-load tapping switches are also available if needed.
● Isochronous controller is necessary if parallel running is adopted by dry type on-load regulating transformers, and the number of transformers should be no more than four.
Fig. 8 ( outline dimensions)

Fig. 9 ( outline dimensions)

Notes: the size of forced air system(fan) can not exceed the size of main body (L*W)
Sheet 5, Basic performance parameter of SC(B)10 series 35/0.4kV 50-2500kVA resin insulation dry type transformer
| Rated voltage of H.V:35(38.5)kV;Rated voltage of L.V:0.4kV, vector group:Dyn11 or Yyn0;50Hz three-phase;insulation level: L1170AC70/LI(0)AC3(kV) | ||||||||||||||||
| Model | Po(W) | PK(75°C)(W) | Uk(%) | Io(%) | Lp dB(A) | GT (kg) | Outline figure | Dimensions(mm) L*W*H/h | Size of basement L1/L2*f-n*Φ18 | H.V outlet M1/M2-Md | L.V outlet K1*K2/K3-δ=3(Fig.a) | |||||
| SC10-50/35 | 450 | 1230 | 6 | 2.0 | 50 | 650 | Figure 10 | 1280*830*1380 | 550/415*000-4*Φ18 | 350/540-M10 | 120*360/240-δ=3(Fig.a) | |||||
| SC10-80/35 | 460 | 1650 | 1.6 | 50 | 920 | 1280*830*1410 | 550/415*000-4*Φ18 | 350/540-M10 | 120*360/240-δ=3(Fig.a) | |||||||
| SC10-100/35 | 630 | 1890 | 1.6 | 51 | 1100 | 1300*850*1470 | 550/425*000-4*Φ18 | 350/550-M10 | 125*375/250-δ=4(Fig.a) | |||||||
| SC10-125/35 | 680 | 2310 | 1.2 | 51 | 1190 | 1450*850*1500 | 550/425*000-4*Φ18 | 350/550-M10 | 125*375/250-δ=4(Fig.a) | |||||||
| SC10-160/35 | 790 | 2640 | 1.2 | 51 | 1320 | 1450*920*1540 | 660/460*000-4*Φ18 | 350/560-M10 | 140*420/260-δ=4(Fig.b) | |||||||
| SC10-200/35 | 880 | 2880 | 1.2 | 51 | 1470 | 1470*920*1590 | 660/460*000-4*Φ18 | 350/570-M10 | 140*420/260-δ=4(Fig.b) | |||||||
| SC10-250/35 | 990 | 3310 | 1.2 | 51 | 1650 | 1490*920*1680 | 660/475*000-4*Φ18 | 350/570-M10 | 145*435/270-δ=5(Fig.b) | |||||||
| SC10-315/35 | 1180 | 3640 | 1.0 | 51 | 1840 | 1600*950*1730 | 660/475*000-4*Φ18 | 350/570-M10 | 150*450/280-δ=6(Fig.c) | |||||||
| SC10-400/35 | 1380 | 4690 | 1.0 | 52 | 2130 | Figure 11 | 1600*950*1760 | 660/475*000-4*Φ18 | 380/570-M10 | 300*600/290-δ=6(Fig.d) | ||||||
| SCB10-500/35 | 1620 | 5770 | 1.0 | 52 | 2560 | 1750*1010*1790 | 820/505*000-4*Φ18 | 380/570-M10 | 310*620/300-δ=6(Fig.d) | |||||||
| SCB10-630/35 | 1860 | 6720 | 0.8 | 52 | 2760 | 1780*1010*1840 | 820/505*190-8*Φ18 | 380/580-M10 | 320*640/340-δ=8(Fig.d) | |||||||
| SCB10-800/35 | 2160 | 7980 | 0.8 | 52 | 3720 | 1900*1050*1930 | 820/510*190-8*Φ18 | 380/580-M10 | 330*660/360-δ=8(Fig.e) | |||||||
| SCB10-1000/35 | 2430 | 9170 | 0.6 | 53 | 4330 | 2000*1050*1950 | 820/510*190-8*Φ18 | 400/590-M10 | 345*690/390-δ=10(Fig.e) | |||||||
| SCB10-1250/35 | 2830 | 11110 | 0.6 | 53 | 5080 | 2080*1070*2080 | 820/535*190-8*Φ18 | 400/630-M10 | 365*730/400-δ=10(Fig.f) | |||||||
| SCB10-1600/35 | 3240 | 13500 | 0.6 | 53 | 6190 | 2150*1275*2150 | 1070/637*190-8*Φ18 | 400/650-M10 | 380*760/430-δ=12(Fig.f) | |||||||
| SCB10-2000/35 | 3820 | 15890 | 0.4 | 54 | 6590 | 2230*1275*2270 | 1070/637*220-8*Φ18 | 450/655-M12 | 395*790/435-δ=12(Fig.g) | |||||||
| SCB10-2500/35 | 4450 | 19000 | 0.4 | 55 | 7760 | 2400*1275*2380 | 1070/637*220-8*Φ18 | 450/660-M12 | 435*870/440-δ=15(Fig.h) | |||||||
Fig.10 ( outline dimension)

Fig.11( outline dimensions of main body)
